前幾天一個朋友跟我說他遇到了無菌罐清洗不干凈的問題,這個案例的詳細情況如下:
1)產品生產完后發現產品壞包,做ATP測試,發現無菌罐清洗不干凈;
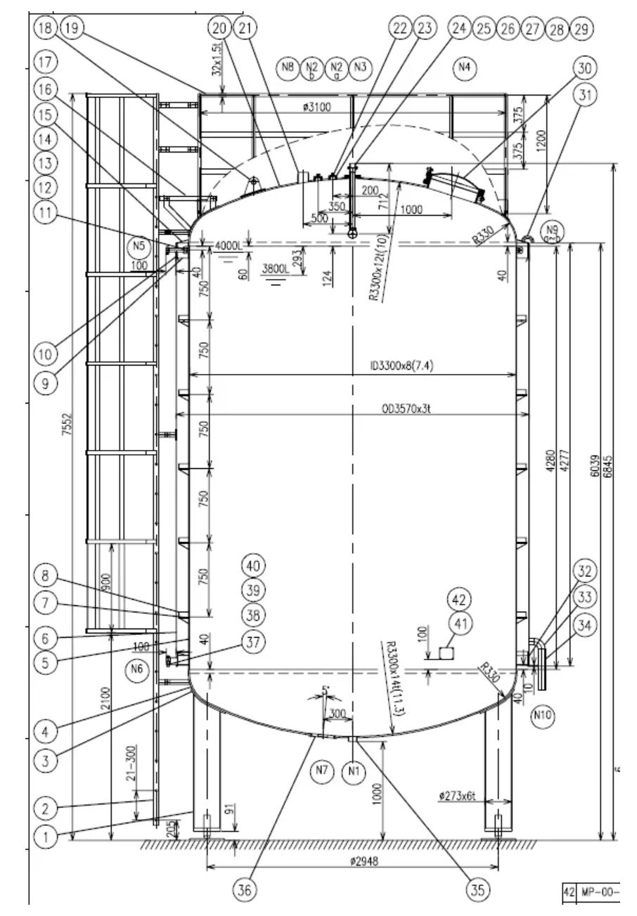
2)無菌罐的大小是40立方米,側攪拌,有兩個清洗球,清洗球是旋轉清洗球;
3)CIP清洗流量是12000L/H;
我覺得這個案例跟之前的內容具有聯系又有區別,因此在此分享給大家。
我們來分析一下這個案例:
因為做過ATP測試,可以確定是CIP的問題而不是SIP的問題;
無菌罐有側攪拌,并且側攪拌有清洗球,因此攪拌側面清洗不干凈的可能也不大。

側攪拌清洗 輔助清洗球1"360°,推薦清洗壓力2bar,清洗半徑最大1.4m;從這個參數我們知道這個清洗球是側清洗,用于攪拌槳葉的清洗。入口壓力2bar時流量是5500L/H和清洗半徑是1m;
罐體清洗 主清洗球 1/2"360°,推薦清洗壓力2bar,清洗半徑最大2m;從這個參數我們知道這個清洗球是主清洗球,用于罐體的清洗。入口壓力2bar時流量是15500L/H和清洗半徑是2m;
我們來看一下無菌罐的尺寸,無菌罐的內徑是3300mm,噴淋球是中心安裝的,因此清洗半徑是1650mm,小于2m;無菌罐的內表面積大約為54㎡;

從清洗流量上來看,兩個清洗球的清洗流量分別是5500L/H和15500L/H(2bar的清洗壓力),而實際提供的流量是12000L/H;
我們查閱上面的曲線,1bar清洗壓力時清洗流量是11000L/H和4000L/H;因此,兩個清洗球必須切換清洗,否則清洗流量不足導致清洗壓力不足;我們知道旋轉噴淋球的旋轉動力來自于清洗壓力,壓力不足將導致旋轉噴淋球旋轉動力不足從而引起部分清洗不干凈;
但是切換清洗,側攪拌清洗球的清洗流量將達到12000L/H,清洗壓力將超過3bar,清洗液霧化,也是達不到清洗效果。因此必須提高清洗流量之15000L/H以上,最好達到推薦流量15500L/H;
如果流量達到15000L/H,那么兩個清洗球同時開啟,避免切換導致側攪拌清洗球清洗液霧化;此時清洗壓力是1bar,處于正常工作的最低極限;
如果流量達到15500L/H,那么側攪拌可以flip清洗,這樣罐壁清洗時側攪拌不清洗,清洗壓力是2bar;當側攪拌清洗時,側攪拌清洗球和主清洗球同時工作,清洗壓力是1bar,也能正常運行。
從清洗半徑來看,主清洗球的清洗半徑是2m,而罐體的直徑是3.3m,清洗球能滿足工況需求。
從罐體的清洗流量來看,罐體的內表面積是54㎡;罐體的清洗流量遵循如下原則:0.08L/㎡(罐體內表面積)/s;
從清洗實踐來看,這位朋友將清洗流量提高到16000L/H,再次進行清洗驗證,問題完全解決。
從這個案例中我們進行總結罐體清洗的確定步驟:
-
計算罐體的表面積,確定罐體清洗流量;
-
確定與罐體連接管路的管徑,依據1.5m/s的清洗流速,確定管路的清洗流量;
-
根據以上兩個流量,以較大者為罐體的清洗流量;
-
根據流量及罐內設備的配置,確定清洗球的類型及其數量;主要是清洗直徑的確定;
-
確定CIP供給管路的直徑和清洗線壓力泵的能力;
-
確定CIP回程泵的能力;
對于清洗半徑,我們需要搞清楚兩個概念:濕潤半徑Wetting Radius和清洗半徑 Cleaning Radius;
濕潤半徑和清洗半徑都是指的水平距離而不是最遠距離;也就是噴淋球安裝的位置到罐壁的水平距離;
濕潤半徑是噴淋球噴出CIP液能達到的最遠距離;這個最遠距離是沒有沖擊力的;
清洗半徑是噴淋球噴出的液體具有一定的沖擊力的半徑;
我們知道對于固定噴淋球來講,主要是依靠清洗液噴淋到罐壁形成完整的液膜,液膜在重力的作用下往下流動過程中形成剪切力,液體也具有一定溶解能力,依靠這兩種力對罐體內壁進行清洗;
而旋轉噴淋球他是部分依靠一定的沖擊力和部分剪切力來清洗罐壁;當清洗球的清洗半徑大于于最遠距離時,可以完全依靠沖擊力進行清洗,當清洗半徑小于最遠距離時,那么部分依靠沖擊力,部分依靠剪切力和溶解力進行清洗。
剪切力和沖擊力是清洗的一個重要參數,清洗的另一個重要參數是覆蓋率;
固定噴淋球的清洗液噴到罐壁上,會由于沖擊力的原因而形成一個圓形,所有的圓形互相銜接,必須能覆蓋整個罐體一圈,其他的依靠液膜流動進行清洗;如果沖擊力不足,可能導致部分無法覆蓋導致清洗失效;固定清洗球的覆蓋率只有10%,也就是只有10%的面積沖擊力達到清洗效果,其他的都是依靠溶解性和剪切力;
旋轉噴淋球是由于旋轉性,清洗的覆蓋率達到70%,因此清洗時間比較短。固定清洗球是靠沖擊力和剪切力兩種模式,因此他是介于清洗器Jet與固定清洗球之間的一種模式。
對于清洗時間,大家也是比較關心,我將在后續進行一個專門的總結。






浙公網安備 33030302001132號
